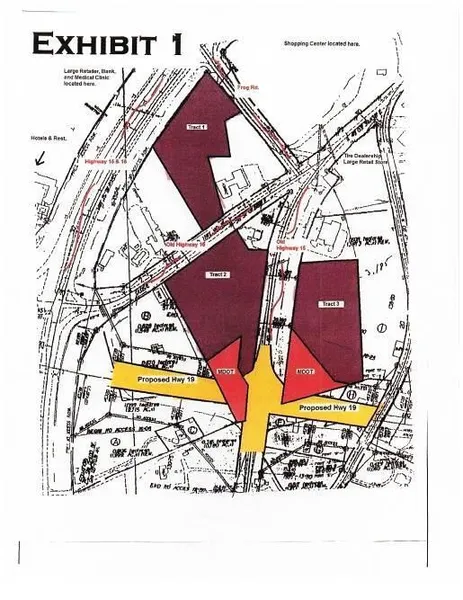
Excellent mixed use Commercial property ready for development-This property consist of tract two 3.65+/- acres as shown in the attached copy of the Survey. Property is located on old Mississippi Highway 15/16 and the new Highway 15/16 bypass west of downtown Philadelphia, Mississippi, in the Williamsville Community and within the Philadelphia city limits\. It is zoned C-3 Highway Commercial and has access to city utilities\. The MDOT Traffic counts show an estimated traffic of 20,000 traveling the bypass\. The 2010 U.S. Census population shows that the population of Philadelphia in 2010 was 7,477 compared to 7,303 in year 2000, an increase of 2.4 % and the Neshoba population was 29,676 in 2010 compared to 28,684 in year 2000 which is an increase of 3.5%.Philadelphia has experienced economic growth through the development of an entertainment and Casino center at Pearl River Resort, the Da...
Excellent mixed use Commercial property ready for development-This property consist of tract two 3.65+/- acres as shown in the attached copy of the Survey. Property is located on old Mississippi Highway 15/16 and the new Highway 15/16 bypass west of downtown Philadelphia, Mississippi, in the Williamsville Community and within the Philadelphia city limits\. It is zoned C-3 Highway Commercial and has access to city utilities\. The MDOT Traffic counts show an estimated traffic of 20,000 traveling the bypass\. The 2010 U.S. Census population shows that the population of Philadelphia in 2010 was 7,477 compared to 7,303 in year 2000, an increase of 2.4 % and the Neshoba population was 29,676 in 2010 compared to 28,684 in year 2000 which is an increase of 3.5%.Philadelphia has experienced economic growth through the development of an entertainment and Casino center at Pearl River Resort, the Dancing Rabbit Golf Club, Geyser Falls Water Park, Neshoba County Fair and establishments such as Banks, shopping centers, motels medical facilities located nearby\. Recently the Citizens of Philadelphia voted to allow serving Alcoholic beverages in Restaurants\. According to local media and city officials, a recent market assessment showed that Philadelphia is in need of automobile, grocery and full scale restaurant businesses because the city is losing millions annually in sales\. The market assessment based on Neshoba county?s tax revenues showed that Philadelphia had primary trade area sales of $419.2 million and of that $390.3 million was spent by local consumers. Gains showed that people are coming to Neshoba County to buy goods. Propertyis ideally located for retail businesses such as automobile dealerships, grocery or convenience stores, Restaurants, Motels, Pharmacies and/or shopping center\. The property may be subdivided\. The lot size may vary based on the need and the sales price may vary according to the square footage required by Buyer\. The Price of Tract 2 is $547500 for 3.65+/- acres. For more information call or text Carlton at 601-573-4006 or email him at [Email listed above] use commercial, development4 acre propertyPhiladelphia, MS 39350water rightsmineral rightsroad frontage
Search for detailed parcel information including; Elevation & Vegetation Maps, Ownership Information, Detailed Parcel Information, Crop History Map, Soil Survey Productivity Data, and more.
Research Parcel Information