Sign up
Log in
Results
View all 1 pictures
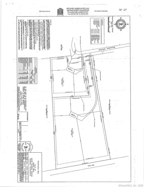
Size: 11.77 Acres

11.77 Acres in Hamden, CT - $199,900

Numerous opportunities for this 11+ acres Owner has completed all work for this to be sub divided into a 2 lot subdivision and maybe able to get a third lot.An adjoining 7+ acres is also for sale.

From elevation to risk assessment

Search for detailed parcel information including; Elevation & Vegetation Maps, Ownership Information, Detailed Parcel Information, Crop History Map, Soil Survey Productivity Data, and more.

Research Parcel Information
Contact Seller

Coldwell Banker Realty

Hamden, CT

8603016818

Provided By

Coldwell Banker Realty, 8603016818
Source: Coldwell Banker, MLS# 170272573
Listing last updated: February 6, 2022 at 2:49 AM
Listing last checked: December 1, 2025 at 9:31 AM
Report this listing

Other Land for Sale in New Haven County