Is this your property? Sell it faster with premium placement and targeted ads.
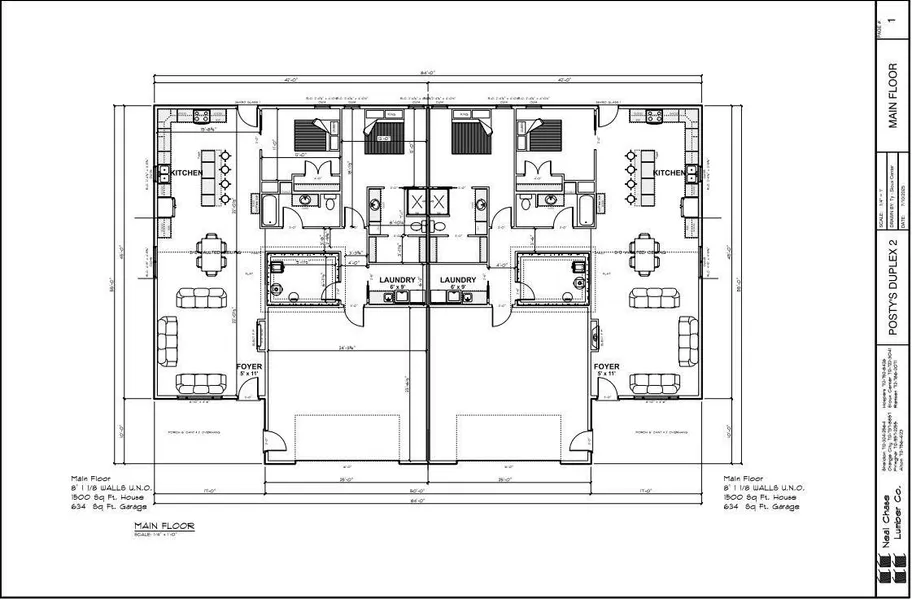
A Beautiful Opportunity awaits you here with New Duplex Construction in a new development area: "THE PHOENIX AT BETHEL" The development area will include 6 duplexes and 2 residential homes. These units are in the process of being built currently. Plans are complete but if you are in early, you will have the opportunity to customize a few options with the builder. Check out these features of the new construction in a beautiful location in the center of town at "The Phoenix at Bethel" 1500 square feet on the main level This unit will be built on a slab and not have a lower level 8` sidewalls on the main Vaulted ceiling in the Great Room 2 Bathrooms on the main including a Master Suite Quartz Countertops Custom cabinetry by G & E Cabinets Cabinets will be Maple and painted white. Remaining portion will be vinyl plank flooring. Zero entrance from garage to living quarters and f...
A Beautiful Opportunity awaits you here with New Duplex Construction in a new development area: "THE PHOENIX AT BETHEL" The development area will include 6 duplexes and 2 residential homes. These units are in the process of being built currently. Plans are complete but if you are in early, you will have the opportunity to customize a few options with the builder. Check out these features of the new construction in a beautiful location in the center of town at "The Phoenix at Bethel" 1500 square feet on the main level This unit will be built on a slab and not have a lower level 8` sidewalls on the main Vaulted ceiling in the Great Room 2 Bathrooms on the main including a Master Suite Quartz Countertops Custom cabinetry by G & E Cabinets Cabinets will be Maple and painted white. Remaining portion will be vinyl plank flooring. Zero entrance from garage to living quarters and from outside into front door. 2 x 6 stud wall construction Electric Fireplace in the Great Room LP Smartboard siding feature the front of duplex to contain approximately 75% stone Siding offers 30 year Manufacturers warranty Pella Vinyl Windows Asphalt shingles Kitchen appliances not included but will be equipped for gas or electrical appliances Gas Furnace Lot will be seeded ***Check out this opportunity soon. Beautiful new construction with the goal of completion in Summer of 2025!!!!
Copyright © 2025 Northwest Iowa Regional Board of Realtors. All rights reserved. All information provided by the listing agent/broker is deemed reliable but is not guaranteed and should be independently verified.
Search for detailed parcel information including; Elevation & Vegetation Maps, Ownership Information, Detailed Parcel Information, Crop History Map, Soil Survey Productivity Data, and more.
Research Parcel InformationIs this your property? Sell it faster with premium placement and targeted ads.