Sign up
Log in
Results
View all 2 pictures
Size: 1 Acre
Type: Homesite

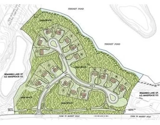
1 Acres in Wareham, MA - $185,000

Only waterfront lot available at the Residences at Tihonet, a community of 17 custom quality homes designed with walking trails, bike paths and beautiful views and access to Tihonet Pond, a 89-acre private bass pond with no power boats or jet skis allowed! Come home and enjoy the peace and beauty of nature! Price includes an approved septic design from the town of Wareham and an approved 3 bedroom house plan from the home owners association.

From elevation to risk assessment

Search for detailed parcel information including; Elevation & Vegetation Maps, Ownership Information, Detailed Parcel Information, Crop History Map, Soil Survey Productivity Data, and more.

Research Parcel Information
Contact Seller

Commonwealth

Westwood,

(508) 810-0702