Sign up
Log in
Results
View all 15 pictures

Is this your property? Sell it faster with premium placement and targeted ads.

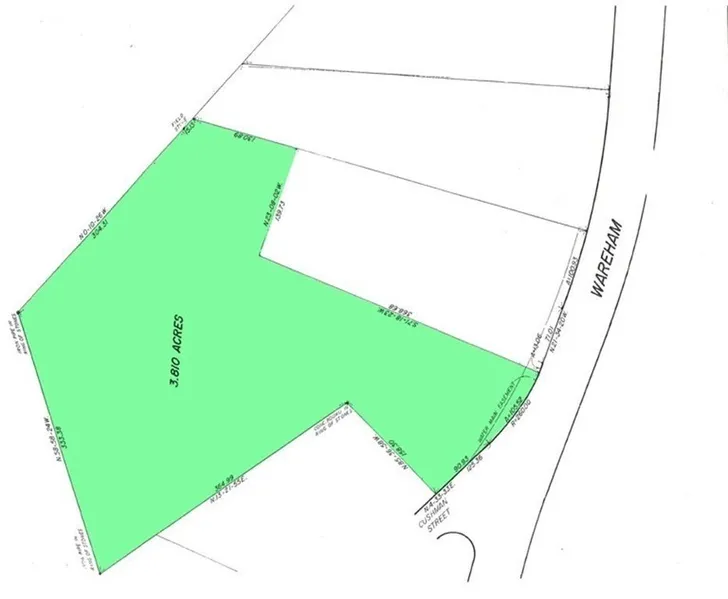
Land - Middleboro, MA

GENERAL USE ...... Great for a single family home with small business. This is a great opportunity of someone seeking both residential and small business potential. It;s location on Wareham and Cushman Sts. with a sizable 3.77 acre lot allows a sense of preivacy and tranquility . See attached plan. 196' frontage. Close to Exits off Route 495. Lovely tree filled lot. Buyers responsible for all cost of permitting. Town water and gas. The lot is large enough for duplex or condo building also, plenty of room for big garage or work shop. Set back off the street this heavily wooded lot just needs a buyer with imagination and a need to be in general use zone.

Copyright © 2025 MLS Property Information Network Inc. All rights reserved. All information provided by the listing agent/broker is deemed reliable but is not guaranteed and should be independently verified.

Read More

From elevation to risk assessment

Search for detailed parcel information including; Elevation & Vegetation Maps, Ownership Information, Detailed Parcel Information, Crop History Map, Soil Survey Productivity Data, and more.

Research Parcel Information

Unlock the full LandWatch experience

Have an account?Sign In

Contact Seller

Keller Williams Realty

South Easton, MA

(508) 728-7333

Scott Morris

Keller Williams Realty
View Phone Number
By clicking the button, you agree to our Terms of Use and Privacy Policy.

Is this your property? Sell it faster with premium placement and targeted ads.

Provided By

Keller Williams Realty, (508) 238-5000
Source: ListHub, MLS# 73196550
Listing status: Active
Listing last updated: October 23, 2025 at 4:26 PM
Listing last checked: October 23, 2025 at 3:32 PM
Report this listing

Other Land for Sale in Plymouth County