Sign up
Log in
Results
View all 5 pictures

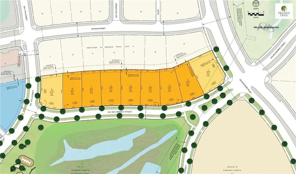
0.23 acres in Polk County, IA

Enjoy the Prairie Trail lifestyle near the new library, theater and bowling alley + all of the shops, dining, amenities and activities that The District at Prairie Trail has to offer! Fantastic location within walking distance to Heritage Elementary, Southview Middle School, and Ankeny High School! Build with Kimberley Development on one of these prime lots overlooking a new city park/greenspace to come. This lot is sold in conjunction with a custom build.

From elevation to risk assessment

Search for detailed parcel information including; Elevation & Vegetation Maps, Ownership Information, Detailed Parcel Information, Crop History Map, Soil Survey Productivity Data, and more.

Research Parcel Information

Directions

From SW State Street, go East on Magazine Drive, then North on Des Moines Street. Lot is on the right.

Environmental Factors

Flood Factor ™
/ 10
Fire Factor ™
/ 10
Heat Factor ™
/ 10
Wind Factor ™
/ 10
Source:First Street
Contact Seller

RE/MAX Concepts

Ankeny, IA

(515) 316-3149

Jill Budden

RE/MAX Concepts
View Phone Number
i
By clicking the button, you agree to our Terms of Use and Privacy Policy.