Explore Land
Search By State
Finance
Find an Agent
Advertise
Javascript must be enabled.
Filters
Active Filters
Remove
Brian Goodman
Boating
1+ Bedrooms
1+ Bathrooms
Under Contract
County
–
Iredell County
1
City
–
Statesville
1
Price
–
$1,000,000 and up
1
Custom Price
-
Add
Parcel Size
–
0 - 10 Acres
1
Custom Size (Acres)
-
Add
Property Types
–
House
1
Bedrooms
–
1+ Bedrooms
1
2+ Bedrooms
1
3+ Bedrooms
1
4+ Bedrooms
1
Custom Beds
-
Add
Bathrooms
–
1+ Bathrooms
1
2+ Bathrooms
1
3+ Bathrooms
1
4+ Bathrooms
1
Custom Baths
-
Add
Square Feet
–
4,001+ Sq. Ft.
1
Custom size (Sq. Ft.)
-
Add
Activities
–
Boating
1
Availability
–
Available
4
Under Contract
1
Sale Type
–
For Sale
1
Owner Financing
Mineral Rights
Virtual Tour
Property Video
Custom Map
Price Reduction
Select
Past 3 days
Past 7 days
Past 30 days
Past 60 days
Past 90 days
Date Listed
Select
Past 24 Hours
Past 7 days
Past 30 days
Past 60 days
Keywords
Go
Brian Goodman
David Hoffman Realty
Charlotte, NC
View Phone Number
Contact
This site is protected by reCAPTCHA and the Google
Privacy Policy
and
Terms of Service
apply.
Brian Goodman - Land for Sale in Charlotte, NC
- 1-1 of 1 Listings
Sort
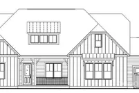
Under Contract
$1,145,060
•
2.59 acres
4 beds
•
4 baths
•
5,323 sqft
122 High Lake Drive, Statesville, NC, 28677, Iredell County
Home
-
United States
-
David Hoffman Realty