Sign up
Log in
Results
View all 1 pictures

0.17 Acres in Providence, RI - $425,000

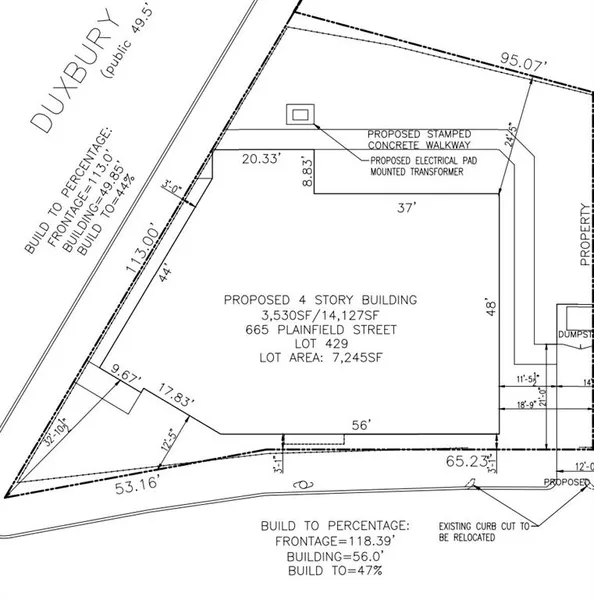
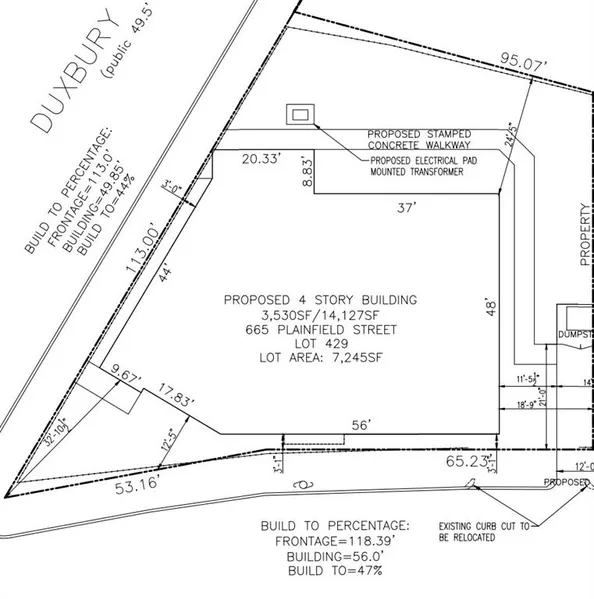
INVESTOR & DEVELOPER ALERT! Prime commercial lot located in the heart of downtown Providence, offering a rare opportunity for development. This property comes with approved plans for a 4-story mixed-use building, featuring 10 units total, including 8 residential units and 2 commercial spaces. With approvals already in hand, this lot presents an ideal investment for those looking to capitalize on Providence's growing downtown area. The location is bustling, with high foot traffic and easy access to local amenities. Don't miss out on this exceptional development opportunity to build in one of the most sought-after areas of the city! Please see MLS#1377681 and MLS#1377689 for other lots side by side, also with approvals in hand for 10 unit mixed use properties!

From elevation to risk assessment

Search for detailed parcel information including; Elevation & Vegetation Maps, Ownership Information, Detailed Parcel Information, Crop History Map, Soil Survey Productivity Data, and more.

Research Parcel Information

Environmental Factors

Flood Factor ™
/ 10
Fire Factor ™
/ 10
Heat Factor ™
/ 10
Wind Factor ™
/ 10
Source:First Street

Provided By

0
Source: Century 21, MLS# 1377693
Listing last updated: December 22, 2025 at 3:38 AM
Listing last checked: February 6, 2026 at 3:30 AM
Report this listing