Sign up
Log in
Results
View all 1 pictures

Is this your property? Sell it faster with premium placement and targeted ads.

0.07 Acres in North Providence, RI - $175,000

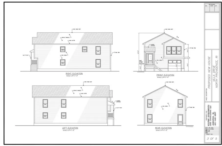
This vacant lot in North Providence offers over 3,000 sq ft of opportunity in an ideal and convenient location. With septic and building plans already in hand, this parcel is primed for development and provides a strong head start for your future home project. Zoned for single-family use, the lot also carries the potential for an ADU, offering added flexibility and value for the right buyer. Final development is subject to city approval of existing plans. Whether you're looking to build a primary residence, investment property, or multi-use living arrangement, this lot delivers exceptional promise. Situated near local amenities, major routes, and area conveniences, this is a rare chance to create a custom home in a desirable community. An amazing opportunity for builders, homeowners, or investors seeking a manageable, well-located project with significant upside.

From elevation to risk assessment

Search for detailed parcel information including; Elevation & Vegetation Maps, Ownership Information, Detailed Parcel Information, Crop History Map, Soil Survey Productivity Data, and more.

Research Parcel Information
Contact Seller

CENTURY 21 Limitless

East Providence, RI

(508) 726-3492

Kyle Seyboth

CENTURY 21 Limitless
View Phone Number
By clicking the button, you agree to our Terms of Use and Privacy Policy.

Is this your property? Sell it faster with premium placement and targeted ads.