Sign up
Log in
Results
View all 2 pictures

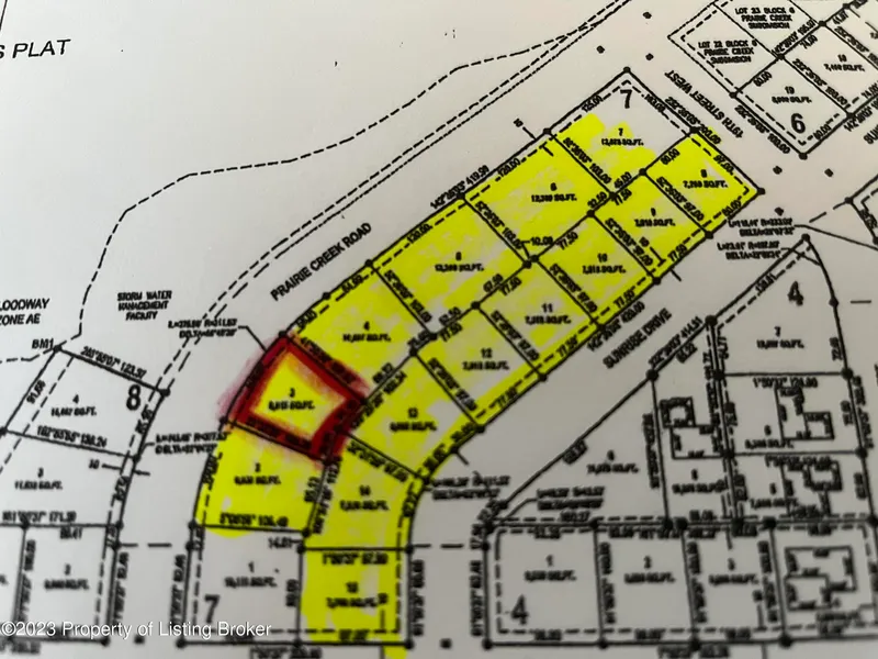
0.2 Acres in Dickinson, ND - $65,000

Are you looking for the perfect spot to build your dream home? Starting at $55,000, Prairie Creek Subdivision is an established neighborhood; offering lots that range from 6,960 SF - 17,628 SF. This is a prime location off of State Avenue and 21st Street W. Builders, call for potential opportunities! Buyer to verify lot taxes and square footage.

From elevation to risk assessment

Search for detailed parcel information including; Elevation & Vegetation Maps, Ownership Information, Detailed Parcel Information, Crop History Map, Soil Survey Productivity Data, and more.

Research Parcel Information

Environmental Factors

Flood Factor ™
/ 10
Fire Factor ™
/ 10
Heat Factor ™
/ 10
Wind Factor ™
/ 10
Source:First Street
Contact Seller

CENTURY 21 Morrison Realty

Dickinson, ND

(701) 290-3560