Sign up
Log in
Results
View all 1 pictures

Is this your property? Sell it faster with premium placement and targeted ads.

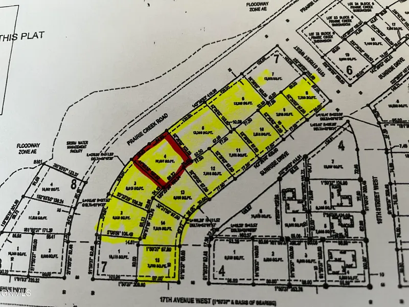
0.25 Acres in Dickinson, ND - $98,000

Are you looking for the perfect spot to build your dream home? Starting at $55,000, Prairie Creek Subdivision is an established neighborhood; offering lots that range from 6,960 SF – 17,628 SF. This is a prime location off of State Avenue and 21st Street W. Builders, call for potential opportunities! Buyer to verify lot taxes and square footage.

From elevation to risk assessment

Search for detailed parcel information including; Elevation & Vegetation Maps, Ownership Information, Detailed Parcel Information, Crop History Map, Soil Survey Productivity Data, and more.

Research Parcel Information
Contact Seller

CENTURY 21 Morrison Realty

Dickinson, ND

(701) 290-3560

Karla Scheeler

CENTURY 21 Morrison Realty
View Phone Number
By clicking the button, you agree to our Terms of Use and Privacy Policy.

Is this your property? Sell it faster with premium placement and targeted ads.

Provided By

CENTURY 21 Morrison Realty, (701) 290-3560
Source: Century 21, MLS# 4017591
Listing last updated: October 12, 2025 at 3:50 AM
Listing last checked: October 11, 2025 at 9:30 PM
Report this listing

Other Land for Sale in Stark County