Is this your property? Sell it faster with premium placement and targeted ads.
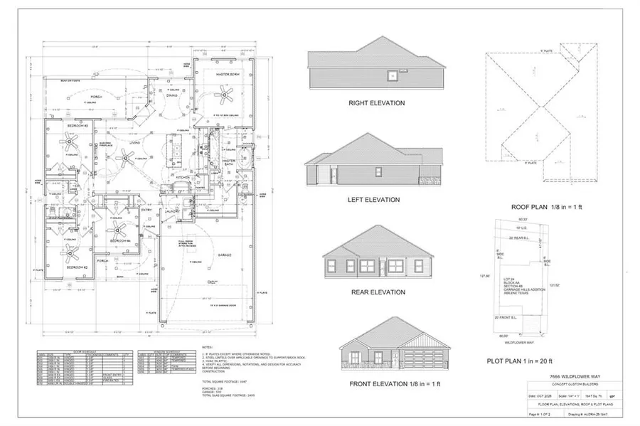
New construction proposed by Red Oak Custom Builders starting soon in Merkel! Wonderful open floorplan with 4 Bedrooms & 2 Bathrooms built on a 9ft plate. Builder's plans for the home - Kitchen to have painted cabinetry, granite on counters, gorgeous walnut butcher block on island, & SS appliances (range, microwave, dishwasher). Living room will have an electric FP. The primary bedroom ensuite has a tub, separate tiled shower, and 2-sink vanity with granite counters. LVP main living areas, carpet in bedrooms. Foam insulation. Class 4 metal roof. Covered porches, front & back. Metal privacy fence and a 2-car garage. Landscaping to include sod in front & back. Wise camera system with 2 cameras & ring doorbell. Builder warranty. This home is just starting so builder's finish out plans ARE SUBJECT TO CHANGE and-or buyer has the opportunity to choose finishes and make some changes at this po...
New construction proposed by Red Oak Custom Builders starting soon in Merkel! Wonderful open floorplan with 4 Bedrooms & 2 Bathrooms built on a 9ft plate. Builder's plans for the home - Kitchen to have painted cabinetry, granite on counters, gorgeous walnut butcher block on island, & SS appliances (range, microwave, dishwasher). Living room will have an electric FP. The primary bedroom ensuite has a tub, separate tiled shower, and 2-sink vanity with granite counters. LVP main living areas, carpet in bedrooms. Foam insulation. Class 4 metal roof. Covered porches, front & back. Metal privacy fence and a 2-car garage. Landscaping to include sod in front & back. Wise camera system with 2 cameras & ring doorbell. Builder warranty. This home is just starting so builder's finish out plans ARE SUBJECT TO CHANGE and-or buyer has the opportunity to choose finishes and make some changes at this point, within builder's allowances. The barndos on the corner of S. 6th and Rose St and the one at 822 Rose were also built by Red Oak Custom Builders. Photos from those homes are just representative of the builder's style. All measurements are approximate. Lot size is also approximate since it's a larger lot that has been subdivided.
Copyright © 2026 North Texas Real Estate Information Systems, Inc. All rights reserved. All information provided by the listing agent/broker is deemed reliable but is not guaranteed and should be independently verified.
Search for detailed parcel information including; Elevation & Vegetation Maps, Ownership Information, Detailed Parcel Information, Crop History Map, Soil Survey Productivity Data, and more.
Research Parcel InformationIs this your property? Sell it faster with premium placement and targeted ads.