- 1-1 of 1 Listings
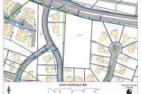
10701 Nuckols Rd, Glen Allen, VA, 23060, Henrico County
Boston, VA, 22713, Rappahannock County
Alton, VA, 24520, Halifax County
New Castle, VA, 24127, Craig County
Blackstone, VA, 23824, Dinwiddie County
Austinville, VA, 24312, Carroll County
Chatham, VA, 24531, Pittsylvania County
Bassett, VA, 24055, Henry County
Max Meadows, VA, 24360, Wythe County
Winchester, VA, 22603, Frederick County
Hillsville, VA, 24343, Carroll County
Bristol, VA, 24202, Scott County
Copper Hill, VA, 24079, Floyd County
Brookneal, VA, 24528, Campbell County
Louisa, VA, 23093, Louisa County
Fancy Gap, VA, 24328, Carroll County
Wytheville, VA, 24382, Wythe County
Lovingston, VA, 22949, Nelson County
Gate City, VA, 24251, Scott County
Laurel Fork, VA, 24352, Carroll County