Sign up
Log in
Results
View all 2 pictures

Is this your property? Sell it faster with premium placement and targeted ads.

Unimproved Land - Washington, IA

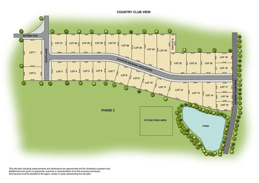
"Welcome Home" to Washington's newest subdivision, Country Club View! This 31-lot subdivision is now inside the City Limits and will offer City water, City sewer, natural gas/electric, paved streets, sidewalks, and streetlights. Build your home in a tranquil, prime location in the southern part of Washington near the Washington Golf & Country Club and Washington High School. Some lots will offer walk-out basements. City infrastructure has been completed and gas & electric installed. This development is open to all builders. Attached you will find a copy of the Restrictive Covenants, Plat Maps, and the Plat Layout. Call Elliott Realty Group for more information at 319-653-6612.

Copyright © 2025 Iowa City Area Association of REALTORS®. All rights reserved. All information provided by the listing agent/broker is deemed reliable but is not guaranteed and should be independently verif...

Read More

From elevation to risk assessment

Search for detailed parcel information including; Elevation & Vegetation Maps, Ownership Information, Detailed Parcel Information, Crop History Map, Soil Survey Productivity Data, and more.

Research Parcel Information
Contact Seller

Elliott Realty Group

Washington, IA

(319) 548-1576

Jeff Hazelett

Elliott Realty Group
View Phone Number
i
By clicking the button, you agree to our Terms of Use and Privacy Policy.

Is this your property? Sell it faster with premium placement and targeted ads.

Provided By

Elliott Realty Group, (319) 548-1576
Source: ListHub, MLS# 202305827
Listing status: Active
Listing last updated: October 8, 2025 at 2:46 AM
Listing last checked: October 10, 2025 at 7:30 AM
Report this listing

Other Land for Sale in Washington County