Sign up
Log in
Results
View all 2 pictures

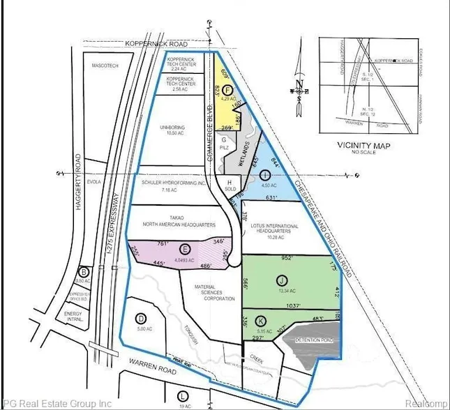
4.29 acres in Wayne County, MI

Land for sale - build to suitSee second photo: Parcel "F" on drawing, shaded in yellow.. Perfect Location:A 4.29-Acre Site, is located in Koppernick Corporate Park, on I-275 north of Ford Road, Canton Township, Wayne County, MI. Koppernick Corporate Park is strategically located midway between Ann Arbor and Detroit, 13 miles from the Detroit Metropolitan Airport and is approximately 17 miles from the American Center for Mobility at Willow Run. All utilities are available, with a subdivision detention pond. Canton may offer tax relief for qualifying companies, and businesses in need of rail transportation could possibly have access with the Chesapeake and Ohio Railroad. Agent owned.

From elevation to risk assessment

Search for detailed parcel information including; Elevation & Vegetation Maps, Ownership Information, Detailed Parcel Information, Crop History Map, Soil Survey Productivity Data, and more.

Research Parcel Information

Directions

I-275, EXIT FORD ROAD. West on Ford Road to Haggerty Road. North on Haggerty Road to Koppernick Road.

Contact Seller
PG Real Estate Group Inc

Bloomfield Hills, MI

(734) 322-9306

Peter Gojcaj

PG Real Estate Group Inc
View Phone Number
By clicking the button, you agree to our Terms of Use and Privacy Policy.

Provided By

PG Real Estate Group Inc, (734) 322-9306
Source: Homes, MLS# 20240014362
Listing last updated: January 16, 2026 at 6:43 AM
Listing last checked: January 15, 2026 at 6:01 AM
Report this listing

More by Peter Gojcaj