Sign up
Log in
Results
View all 10 pictures

0.15 Acres in Carlton, OR - $185,000

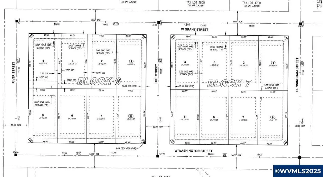
Welcome to Carlton's newest development! Located directly across from Wennerberg Park and next to farm ground, they make for a truly peaceful setting. All lots are all over 6700 sq ft and all at 60' wide to easily fit a 3 car garage plan or allow for extra RC/Trailer parking. Construction complete & lots are all ready for foundations, so bring your own plans! Each lot comes with approx $4,300 in SDC credits! Call today with questions & availability. Owner entity member is a licensed broker in State of OR.

From elevation to risk assessment

Search for detailed parcel information including; Elevation & Vegetation Maps, Ownership Information, Detailed Parcel Information, Crop History Map, Soil Survey Productivity Data, and more.

Research Parcel Information
Contact Seller

Coldwell Banker Mountain West Real Estate, Inc.

Salem, OR

(503) 999-6578

Provided By

Coldwell Banker Mountain West Real Estate, Inc., (503) 999-6578
Source: Coldwell Banker, MLS# 833513
Listing last updated: September 14, 2025 at 3:24 AM
Listing last checked: October 10, 2025 at 7:30 AM
Report this listing

Other Land for Sale in Yamhill County