Sign up
Log in
Results
View all 1 pictures

Is this your property? Sell it faster with premium placement and targeted ads.

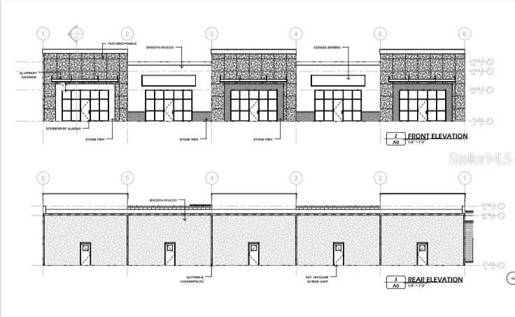
Retail - CLERMONT, FL

Pre-Construction. To be built. We are pleased to present this Pre-Construction Retail Plaza in a Prime Location At Four Corners Clermont FL featuring 5 units of 938 sq, ft each ideal for retail shops, restaurants, professional offices. This development will provide high visibility, modern architecture located in a growing commercial corridor with strong local traffic and Parking Ratio 5:1,000 SF. Anticipated breaking ground early March 2026, the strip center will be delivered as a gray shell with an anticipated completion date by early September 2026. Landlord offers TI allowance for qualified prospects. Pre-lease rate SAVINGS 1st year available now.

Copyright © 2025 Stellar MLS. All rights reserved. All information provided by the listing agent/broker is deemed reliable but is not guaranteed and should be independently verified.

Read More

From elevation to risk assessment

Search for detailed parcel information including; Elevation & Vegetation Maps, Ownership Information, Detailed Parcel Information, Crop History Map, Soil Survey Productivity Data, and more.

Research Parcel Information
Contact Seller

EMPIRE NETWORK REALTY

License #3330945

Orlando, FL

(407) 683-1672

Sherif Nassif

EMPIRE NETWORK REALTY
View Phone Number
By clicking the button, you agree to our Terms of Use and Privacy Policy.

Is this your property? Sell it faster with premium placement and targeted ads.

Provided By

EMPIRE NETWORK REALTY, (407) 729-9406
Source: ListHub, MLS# O6360267
Listing status: Active
Listing last updated: November 22, 2025 at 8:43 PM
Listing last checked: December 11, 2025 at 3:30 PM
Report this listing