Sign up
Log in
Results
View all 7 pictures

0.35 Acres in Missoula, MT - $399,900

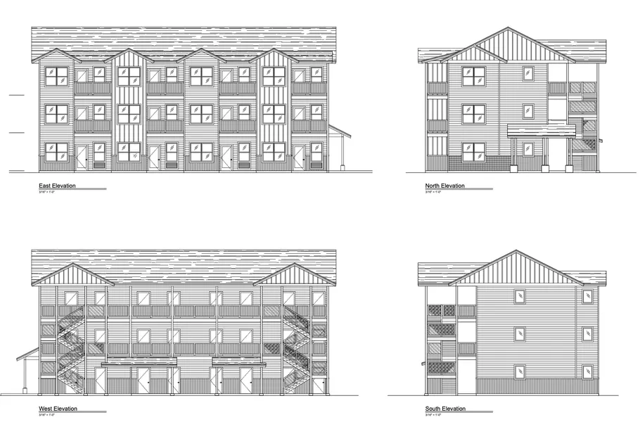
This centrally located land sits on a total of four city lots zoned for up to 15 units. Architecture, structural, civil, electrical and plumbing engineering have been completed for a 12 unit apartment building and are included in the asking price. Plans are almost ready to submit for building permit. Or bring your own development ideas - single family homes, townhomes, apartments and condos are all permitted in the RM1-45 zoning district. Multiple lots make for flexibilty in design and ownership. For more information, call or text Adam Hertz at 406-239-1865 or call your real estate professional. This property is agent owned.

From elevation to risk assessment

Search for detailed parcel information including; Elevation & Vegetation Maps, Ownership Information, Detailed Parcel Information, Crop History Map, Soil Survey Productivity Data, and more.

Research Parcel Information
Contact Seller

ERA Lambros Real Estate

Missoula, MT

(406) 239-1865

Provided By

ERA Lambros Real Estate, (406) 239-1865
Source: ERA Real Estate, MLS# 22115119
Listing last updated: December 4, 2022 at 1:17 PM
Listing last checked: October 10, 2025 at 5:31 AM
Report this listing

Other Land for Sale in Missoula County