Is this your property? Sell it faster with premium placement and targeted ads.
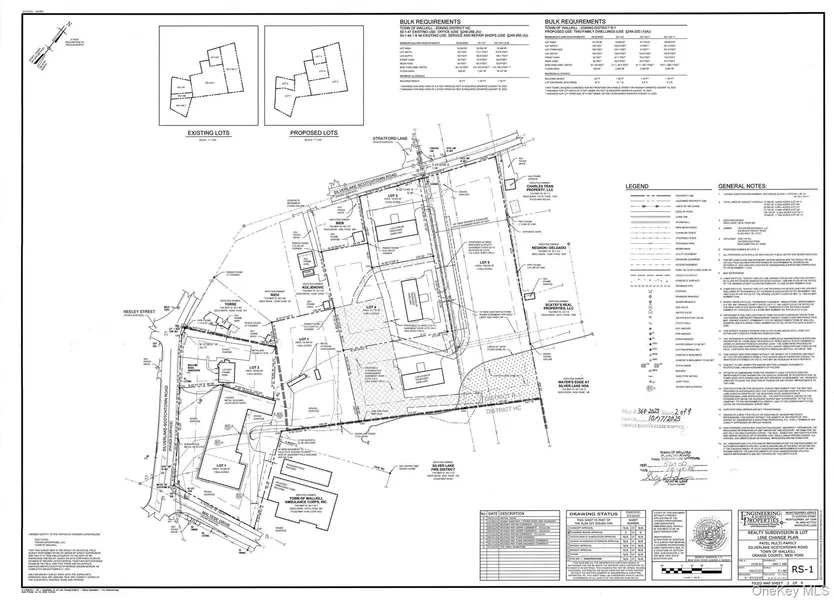
Attention Builders and Developers: Presenting a rare, fully-approved 3-lot subdivision on Silverlake Scotchtown Road in the desirable Town of Wallkill, ready for the construction of three new two-family homes. Each lot is designed to accomodate a 32x80 structure which is large enough for each unit to include 3 bedrooms, 2 baths and a 1 car garage. Seller does not have architectural plans so builder/developer can decide exactly what they want to build. This is a shovel-ready project as all major hurdles have been cleared: the plans for the Patel Multi-Family Realty Subdivision have been granted Planning Board approval and the map is officially filed, eliminating months of risk and carrying costs. The infrastructure is approved for connection to Municipal Water, Municipal Sewer, and Natural Gas (O&R). The location offers superior convenience, situated just off Route 211 with excellent prox...
Attention Builders and Developers: Presenting a rare, fully-approved 3-lot subdivision on Silverlake Scotchtown Road in the desirable Town of Wallkill, ready for the construction of three new two-family homes. Each lot is designed to accomodate a 32x80 structure which is large enough for each unit to include 3 bedrooms, 2 baths and a 1 car garage. Seller does not have architectural plans so builder/developer can decide exactly what they want to build. This is a shovel-ready project as all major hurdles have been cleared: the plans for the Patel Multi-Family Realty Subdivision have been granted Planning Board approval and the map is officially filed, eliminating months of risk and carrying costs. The infrastructure is approved for connection to Municipal Water, Municipal Sewer, and Natural Gas (O&R). The location offers superior convenience, situated just off Route 211 with excellent proximity to major highways like I-84 and Route 17/I-86, and only minutes from the Metro North train, making the final units highly marketable. The approved zoning allows the buyer significant flexibility to provide their own architectural drawings to the Town, enabling them to tailor the unit sizes and finishes to the current market. A previous design concept centered around high-yield duplexes featuring spacious 3-bedroom, 2-bathroom units with a 1-car garage. This offering includes Lot 3 (+/- 0.432 acres), Lot 4 (+/- 0.867 acres), and Lot 5 (+/- 2.5 acres). For streamlined long-term management, a common/shared driveway and a common use and maintenance agreement are already prepared and in place. This is a premium opportunity for a developer looking to maximize their construction timeline and profitability with a de-risked site. Contact the listing agent today to receive all filed site plans and engineering reports (See Documents for the Filed Map)
Copyright © 2026 OneKey MLS. All rights reserved. All information provided by the listing agent/broker is deemed reliable but is not guaranteed and should be independently verified.
Search for detailed parcel information including; Elevation & Vegetation Maps, Ownership Information, Detailed Parcel Information, Crop History Map, Soil Survey Productivity Data, and more.
Research Parcel InformationIs this your property? Sell it faster with premium placement and targeted ads.