Sign up
Log in
Results
View all 1 pictures

Is this your property? Sell it faster with premium placement and targeted ads.

Unimproved Land - Willow Park, TX

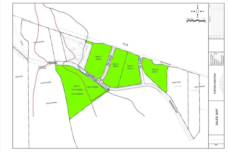
PRIME NEW COMMECIAL DEVELOPMENT soon to be completed on the south side of I-20 just east of the Clear Fork of the Trinity River and just west of Bankhead Hwy. Property is targeting a Restaurant Row concept as well as other retail. Several new TX DOT entrances have been poured while water, sewer, and natural gas are currently being installed. This is slated to become one of the hottest commercial locations due to the recently installed Trinity Christian Athletic Facility as well as the refurbishment of Bankhead Hwy. Tract numbers and lot sizes are conceptual only and Owner will consider the feasibility of this lot known as Tract 2 to be further subdivided or redrawn as necessary. Either way this tract will require final plat and zoning approval as shown on the preliminary concept plan.

Copyright © 2026 North Texas Real Estate Information Systems, Inc. All rights reserved. All informati...

Read More

From elevation to risk assessment

Search for detailed parcel information including; Elevation & Vegetation Maps, Ownership Information, Detailed Parcel Information, Crop History Map, Soil Survey Productivity Data, and more.

Research Parcel Information

Environmental Factors

Flood Factor ™
/ 10
Fire Factor ™
/ 10
Heat Factor ™
/ 10
Wind Factor ™
/ 10
Source:First Street
Contact Seller

Railhead Realty, LLC

License #0583786

Willow Park, TX

(817) 441-2255

Ron L. Hughes

Railhead Realty, LLC
View Phone Number
i
By clicking the button, you agree to our Terms of Use and Privacy Policy.

Is this your property? Sell it faster with premium placement and targeted ads.

Provided By

Railhead Realty, LLC, (817) 441-2255
Source: ListHub, MLS# 20078034
Listing status: Active
Listing last updated: December 31, 2025 at 11:19 PM
Listing last checked: December 31, 2025 at 10:30 PM
Report this listing

Other Land for Sale in Parker County