Sign up
Log in
Results
View all 14 pictures

Is this your property? Sell it faster with premium placement and targeted ads.

LAND - Hamilton, MT

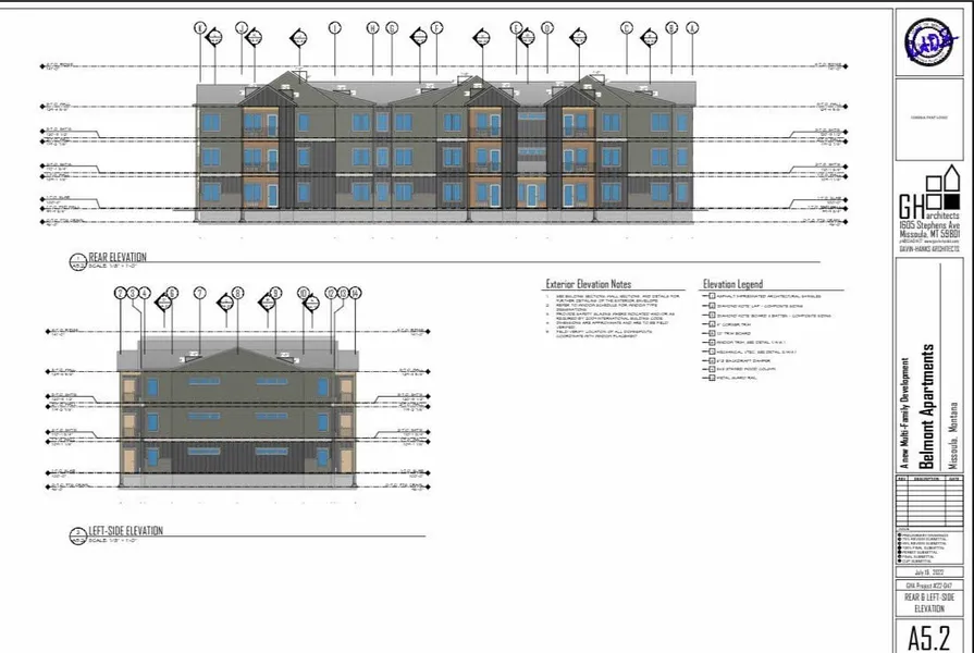
Calling all investors! Here is a rare opportunity to purchase a development that has already been approved for multiple units in the thriving community of Hamilton Montana. Sitting on two parcels, totaling just under two acres, this desirable location is within walking distance to local restaurants, shops and close proximity to the Bitterroot River. Investors have the option of purchasing outright, hiring the current development company to complete or join in a partnership with the current developer. Plans have been drawn and approved for 36 units, with an additional 18 units projected for a phase two. Certain permits have been acquired, and developer is currently working with the city to receive special infrastructure funding. This also includes an 18 plex electrical box.

Copyright © 2025 Montana Regional MLS. All rights reserved. All information provided by the listing agent/broker is d...

Read More

From elevation to risk assessment

Search for detailed parcel information including; Elevation & Vegetation Maps, Ownership Information, Detailed Parcel Information, Crop History Map, Soil Survey Productivity Data, and more.

Research Parcel Information
Contact Seller

Double Black Diamond Real Estate

License #RRE-RBS-LIC-119123

Darby, MT

(406) 624-9798

Johnny Johnson

Double Black Diamond Real Estate
View Phone Number
By clicking the button, you agree to our Terms of Use and Privacy Policy.

Is this your property? Sell it faster with premium placement and targeted ads.