Sign up
Log in
Results
View all 1 pictures

18.8 acres in Ulster County, NY

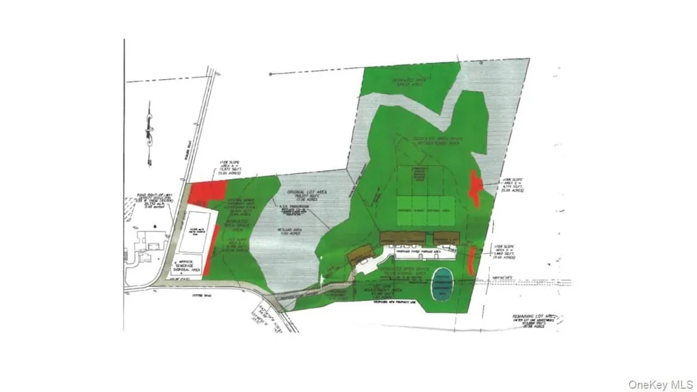
BUILDERS, DEVELOPERS, AND INVESTORS - TAKE NOTICE. This 18.8 acre property offers a rare opportunity with significant groundwork already completed. The current owner previously secured permits and approved plans for a 15-Unit Townhouse development. Although the permits have since expired, the approved plans will be included with the sale. Substantial improvements have already been made, including two drilled wells and a constructed roadway, reducing both time and upfront development costs for the next owner. An adjacent parcel (MLS #952390) totaling 25.800 acres is also available for purchase, creating the potential for an expanded project or complementary development. This parcel features approximately 512 feet of road frontage and is zoned RR1.5, offering flexibility for residential development consistent with local zoning regulations.

From elevation to risk assessment

Search for detailed parcel information including; Elevation & Vegetation Maps, Ownership Information, Detailed Parcel Information, Crop History Map, Soil Survey Productivity Data, and more.

Research Parcel Information

Directions

Contact Seller

Coldwell Banker Realty

New City, NY

(877) 408-2276

Michael Kubala

Coldwell Banker Realty
View Phone Number
By clicking the button, you agree to our Terms of Use and Privacy Policy.

Provided By

Coldwell Banker Realty, (877) 408-2276
Source: Homes, MLS# KEY951945
Listing last updated: February 6, 2026 at 6:31 AM
Listing last checked: February 5, 2026 at 6:01 AM
Report this listing

More by Michael Kubala