Is this your property? Sell it faster with premium placement and targeted ads.
Vista Park Townhomes invites investors and builders to join an Opportunity Zone project in the heart of Decatur, Texas. Build alongside a national builder who owns the single family lots. Investors can partner with the developer to build or purchase your own 4-, 5-, or 6-lot packages. This opportunity is featuring 55 lots (25'×85') with rear-entry garages, slated to start construction by summer 2026. Zoning and utilities (city water, sewer, electricity, high-speed internet) are in place; development is expected to start early 2026—making this nearly shovel-ready. Nestled on Decatur’s serene edge, residents enjoy peaceful living minutes from I-35, top schools, dining, and shopping. Opportunity Zone tax benefits—deferred capital gains, potential exclusions—enhance ROI in this high-growth market. Whether partnering with a proven builder or adding to your ready to build lots, Vista Park of...
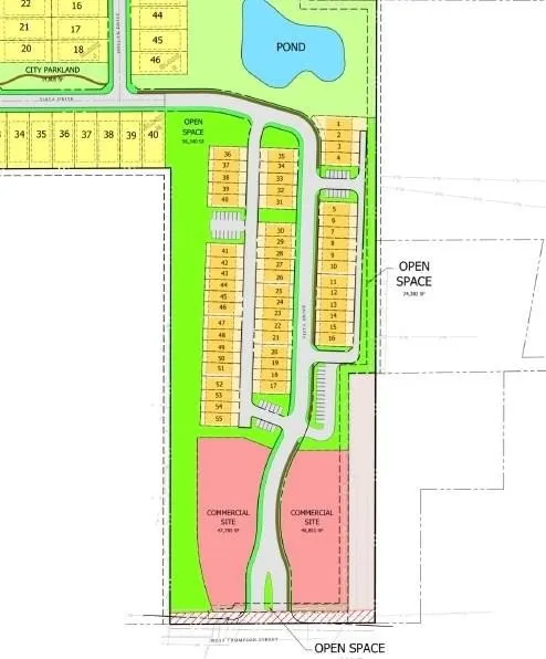
Vista Park Townhomes invites investors and builders to join an Opportunity Zone project in the heart of Decatur, Texas. Build alongside a national builder who owns the single family lots. Investors can partner with the developer to build or purchase your own 4-, 5-, or 6-lot packages. This opportunity is featuring 55 lots (25'×85') with rear-entry garages, slated to start construction by summer 2026. Zoning and utilities (city water, sewer, electricity, high-speed internet) are in place; development is expected to start early 2026—making this nearly shovel-ready. Nestled on Decatur’s serene edge, residents enjoy peaceful living minutes from I-35, top schools, dining, and shopping. Opportunity Zone tax benefits—deferred capital gains, potential exclusions—enhance ROI in this high-growth market. Whether partnering with a proven builder or adding to your ready to build lots, Vista Park offers flexibility, infrastructure, and location. Contact us today to secure your stake in Decatur’s next premier community!
Copyright © 2025 North Texas Real Estate Information Systems, Inc. All rights reserved. All information provided by the listing agent/broker is deemed reliable but is not guaranteed and should be independently verified.
Search for detailed parcel information including; Elevation & Vegetation Maps, Ownership Information, Detailed Parcel Information, Crop History Map, Soil Survey Productivity Data, and more.
Research Parcel InformationIs this your property? Sell it faster with premium placement and targeted ads.